首页
中文
FRENCH
ENGLISH
-----中科建相关网站-----
中科建建设发展有限公司
中科建(北京)建筑规划设计有限公司
中科建(北京)钢结构工程技术有限公司
中科建(北京)环境工程有限公司
北京素道国际规划设计有限公司
原本营造建筑设计咨询(北京)有限公司
迈瑞司(北京)抗震住宅技术有限公司
建筑设计
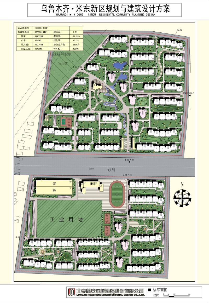
项目名称:乌鲁木齐米东新区规划与建筑设计
COPYRIGHT © 2010-2020 版权所有:中科建集团公司
京ICP备11012213号-6
中文域名:中科建
|
联系我们
|
隐私权声明